ALLIANCE INOX
316L stainless steel tank - Closed - 006623
ALLIANCE INOX
350 HL (35 000 liters)
Detailed description :
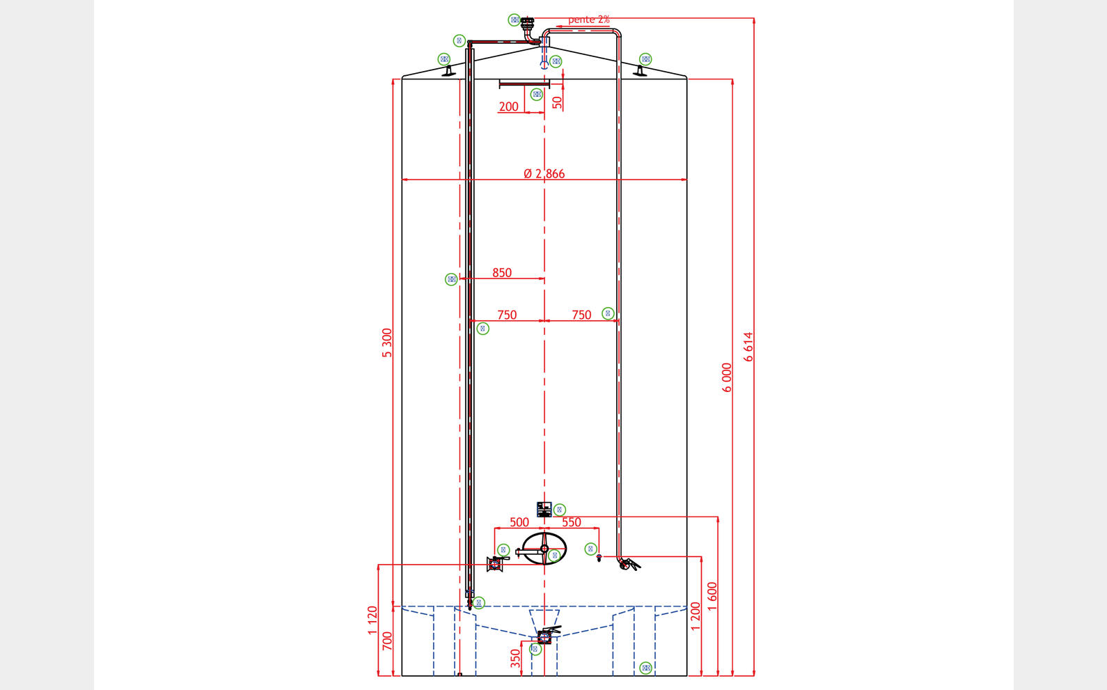
TECHNICAL FEATURES
- Oval autoclave door 307x442 with EPDM seal
- Butterfly valve DN70 for total draining
- Ball valve DN50 for clear draining mounted on reinforced flange
- Taster tap screwed on a 15/21 weld-on sleeve
- Firm plate and DRIRE approved gauging
- Washing pipe DN40 return to the centre of the roof and butterfly valve at the bottom of the boom
- Level tap for purging
- DRIRE approved level regulator
- Level return screwed on 15/21 sleeve to be welded
- Plumb line
- Rotating stainless steel washing ball DN38 TOFTEJORG
- 2 anchoring brackets for spreader
- Ladder support
- Oval autoclave door 307x442 with EPDM seal
- Butterfly valve DN70 for total draining
- Ball valve DN50 for clear draining mounted on reinforced flange
- Taster tap screwed on a 15/21 weld-on sleeve
- Firm plate and DRIRE approved gauging
- Washing pipe DN40 return to the centre of the roof and butterfly valve at the bottom of the boom
- Level tap for purging
- DRIRE approved level regulator
- Level return screwed on 15/21 sleeve to be welded
- Plumb line
- Rotating stainless steel washing ball DN38 TOFTEJORG
- 2 anchoring brackets for spreader
- Ladder support
- 4 heavy duty handling rings
- PVC pressure/pressure valve mounted on elbow in the centre of the roof at the top
- Roof: 20/10 stainless steel 316L
- Shell: 20/10 stainless steel 316L
- Bottom: 40/10 stainless steel 316L
- Legs: 30/10 stainless steel 304
- Interior: cold rolled 2B glazed
- Stripped - passivated
- Exterior: 120 grain satin polish
- Welding entirely carried out under neutral gas atmosphere
DIMENSIONS
- Diameter: 2866 mm
- Height : 6614 mm
- Height under drain : 35
- PVC pressure/pressure valve mounted on elbow in the centre of the roof at the top
- Roof: 20/10 stainless steel 316L
- Shell: 20/10 stainless steel 316L
- Bottom: 40/10 stainless steel 316L
- Legs: 30/10 stainless steel 304
- Interior: cold rolled 2B glazed
- Stripped - passivated
- Exterior: 120 grain satin polish
- Welding entirely carried out under neutral gas atmosphere
DIMENSIONS
- Diameter: 2866 mm
- Height : 6614 mm
- Height under drain : 35