1. Arsilac
  2. New & used products available
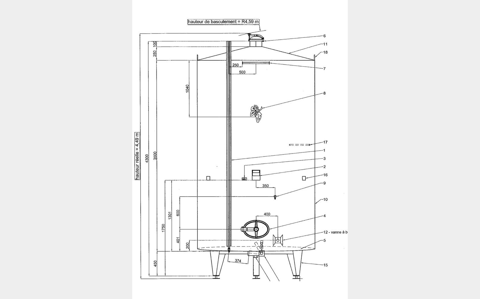
  3. STORAGE AND MIXING TANK
  4. Stainless steel tanks
  5. Stainless steel cylindrical tank - Vertical - On feet
Sold
1 / 3
Ref. 007176
Stainless steel cylindrical tank - Vertical - On feet Stainless steel cylindrical tank - Vertical - On feet Stainless steel cylindrical tank - Vertical - On feet

Stainless steel cylindrical tank - Vertical - On feet - 007176

METALINOX
200 HL (20,000 litres)

Detailed description :

TECHNICAL FEATURES
- Material: 316L stainless steel
- Year : 2001

ROOF
- DN 220 trapdoor + valve
- Conical top
- Lifting rings

BOTTOM
- Flat bottom with 4% slope
- Drain DN40 + decanter elbow
- Total drain DN50
- Adjustable feet

VIROLE
- Oval autoclave door
- LNE graduated scale
- DN40 partial ball drain valve
- Tasting tap
- Sensor pocket
- Scale support

DIMENSIONS
- Diameter : 2200 mm
- Height : 4490 mm