1. Arsilac
  2. New & used products available
  3. STORAGE AND MIXING TANK
  4. Stainless steel tanks
  5. 304 stainless steel tank - Cooling coil - Flat sloping bottom - Floating cap
New
1 / 10
Ref. 006419
304 stainless steel tank- Floating cap - SPAIPSER2300 304 stainless steel tank- Floating cap - SPAIPSER2300 304 stainless steel tank- Floating cap - SPAIPSER2300 304 stainless steel tank - Cooling coil - SPAIP5200SER 304 stainless steel tank- Floating cap - SPAIPSER2300 304 stainless steel tank- Floating cap - SPAIPSER2300 304 stainless steel tank- Floating cap - SPAIPSER2300 304 stainless steel tank- Floating cap - SPAIPSER2300 304 stainless steel tank- Floating cap - SPAIPSER2300 304 stainless steel tank- Floating cap - SPAIPSER2300

304 stainless steel tank - Cooling coil - Flat sloping bottom - Floating cap - 006419

ARSILAC
23 HL (2300 Liters)

Stock : 1

Detailed description :

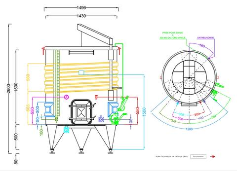
TECHNICAL CHARACTERISTICS
- Brand : ARSILAC
- Model : SPAIPSER2300
- Material: 304 stainless steel
- Total capacity: 2 297 litres
- Bottom: flat sloping, 4% slope
- Roof: floating cap
- Interior finish : bright annealed
- Exterior finish: brushed

ROOF
- 1 INOX 316L floating cap and complete pneumatic system
(stainless steel cover, pump, air chamber, valve)

VIROLE
- Vacuum lifting rings
- 1 gallows
- 1 lifting winch
- 1 ladder support
- 1 rectangular door 420×530 mm at the bottom of the shell, opening outwards
- 1 partial drain with 100×100 square flange, 40 MÂCON stainless steel ball valve, stainless steel plug
- 1 DIN 15 tasting tap
- 1 needle thermometer
- 1 complete stainless steel level with tap and stainless steel ruler (polycarbonate tube)
- 4 turns of coil with 1.9 m² exchange surface on the shell
- 2 turns of coil with an exchange surface area of 0.6 m² around the door
- Maximum pressure on coil circuit: 1.5 bar
- 1 inlet and 1 outlet on the coil circuit, 1‘ 1/4’ male GAS connection
- 1 connection with immersion sleeve for control probe
- 1 identification plate

BOTTOM
- 1 total drain with square 100×100 flange, stainless steel 40 MÂCON ball valve and stainless steel plug
- 3 stainless steel feet, height 500 mm, adjustment screw and plate

DIMENSIONS
- Diameter: 1400 mm
- Height of shell: 1500 mm
- Overall height: 2600 mm
- Weight: 195 kg
- Shell thickness: 15/10ᵉ mm
- Curved base thickness: 20/10ᵉ mm

ANNEXES
- Tank for product density 1
- Operating conditions: atmospheric pressure
- 1 year warranty
- Made in Italy - Europe
- Complies with CE standards

_________________

TIPS AND NEWS